DHA RAYA 8 GREEN CONDO - BILSMARK

8 Green

In the heart of DHA Phase 6 Lahore, a landmark project is reshaping how we think about city living. The 8 Green Defence Raya Apartments, developed by DRGCC (Defence Raya Golf & Country Club), stand as a rare blend of prestige, lifestyle, and long-term investment value. For years, DHA has been known for secure living and upscale neighbourhood. With 8 Green, it takes that promise to the next level.

Key Features

DHA RAYA 8 GREEN CONDO - BILSMARK

 

A Location That Speaks for Itself

The project is positioned right on the iconic Raya Golf Course front, which makes it unlike any other apartment development in the city. Imagine waking up every day to lush green fairways, water features, and wide open skies a lifestyle most people in Lahore can only dream of. Beyond the views, the address connects seamlessly with schools, hospitals, shopping districts, and the wider DHA road network. You get peace without sacrificing accessibility.

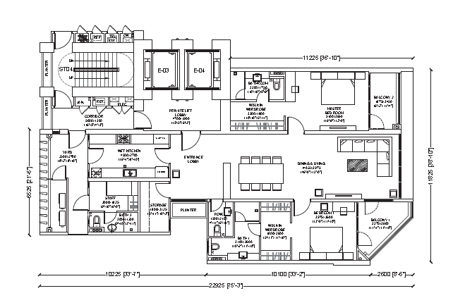
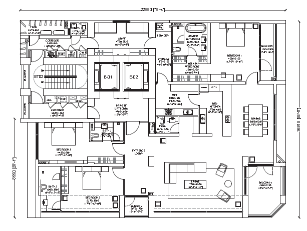
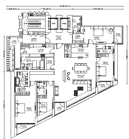
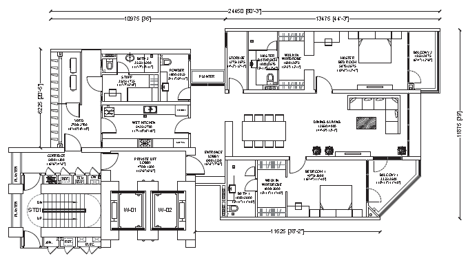
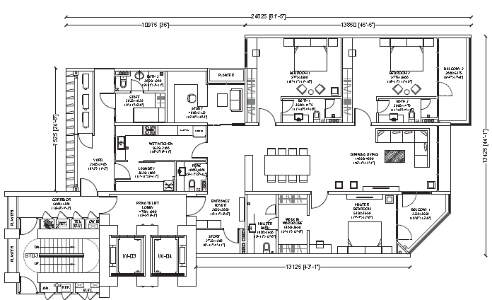
8Green Floor Plans

Architecture and Design

This 20-story tower is a statement in itself. It’s not just about height; it’s about proportion, airflow, and light. The apartments are designed with large windows and balconies to maximize natural light and cross ventilation. Whether you choose a 2-bedroom unit (1,800–2,200 sq. ft.) or a 3-bedroom layout (2,200–2,800 sq. ft.), every square foot feels purposeful.

The interiors emphasize modern living: open kitchens, spacious lounges, en-suite bedrooms, and premium fittings. It’s luxury without the clutter.

 

Views That Define Value

8 Green offers three distinct options:

  • Golf Course View – The crown jewel. Panoramic views of the Raya Golf Course. Highest demand, highest appreciation.

  • Pond View – Peaceful and scenic. Slightly more affordable but no compromise on serenity.

  • Main Road View – For those who prefer vibrancy and quick access.

This tiered approach allows buyers to align their purchase with their lifestyle and budget, but in every case, the value is tied to the view.

Amenities That Go Beyond the Apartment

What sets 8 Green apart isn’t just the walls — it’s the lifestyle:

  • Swimming pool and health club

  • Dedicated gym and spa facilities

  • Reception lobby with concierge services

  • Secure parking and 24/7 surveillance

  • Kids’ play areas and family recreation zones

  • Proximity to the Raya Golf & Country Club, offering residents exclusive access to one of Lahore’s finest social hubs

It’s a world where every convenience is integrated.

DHA RAYA 8 GREEN CONDO - BILSMARK
DHA RAYA 8 GREEN CONDO - BILSMARK

📞  Whatsapp/ Call.     +92-324-490-4686

Payment Plans and Pricing

DRGCC understands the market. That’s why they’ve structured 3-year flexible payment plans with a 20% down payment. Some agents also facilitate extended 5-year options.

Price breakdowns depend on the view:

  • Main Road View – ~PKR 43,000 per sq. ft.

  • Pond View – ~PKR 45,000 per sq. ft.

  • Golf Course View – ~PKR 47,000 per sq. ft.

For example, a 3-bed golf view apartment of 2,622 sq. ft. comes to around PKR 121 million+, payable over time.

DHA RAYA 8 Green Payment by Bilsmark
DHA RAYA 8 Green Payment by Bilsmark
DHA RAYA 8 Green Payment by Bilsmark

📞  Whatsapp/ Call.     +92-324-490-4686

Why 8 Green Makes Sense for Buyers

Here’s the thing — in a city where houses are getting harder to maintain and land prices are soaring, apartments like 8 Green are not just luxury; they’re practical.

  • For Families: Safety, amenities, and green surroundings without the stress of house maintenance.

  • For Professionals: Prestige address and easy lock-and-leave lifestyle.

  • For Investors: Rental potential in the luxury segment, plus guaranteed appreciation in DHA Phase 6.

And let’s be honest — projects backed by DHA and DRGCC carry credibility. The risk is far lower compared to untested developers.

 

The Bilsmark Perspective

At Bilsmark, we don’t just sell properties. We evaluate them. And 8 Green passes every major test: location, developer credibility, lifestyle offering, and investment value. Yes, it’s premium, but in Lahore’s real estate landscape, this is the kind of premium that holds its worth.

 

DHA RAYA 8 GREEN CONDO

Final Word

The 8 Green Defence Raya Apartments are not just homes — they’re a lifestyle upgrade, a status symbol, and a long-term investment rolled into one. If you’ve been waiting for the right project to secure your place in Lahore’s luxury market, this is it.

Get in Touch with Bilsmark

For bookings, site visits, or payment plan details, reach out to us today:

📞 +92-324-490-4686
📧 info@bilsmark.com
📍 156 MB, DHA Phase 6, Lahore

Bilsmark – More than a deal. Your standard for real estate excellence.

Leave a Reply

Your email address will not be published. Required fields are marked *